Property Description
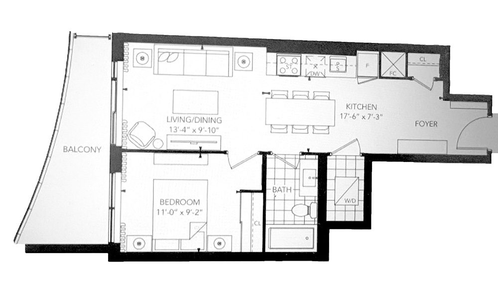
1 bedroom 1 washroom with a total area of 698 to 719 sq ft, original purchase price of $556,900 plus $4,190.39 for upgrades. Expected occupancy is December 18th, 2025.
Located in Pickering, just walking distance to the GO train station and close to all amenities.

